RED Business

Разработка паспорта фасадов

Разработка паспорта фасадов здания стала обязательной с 19.06.2018. У нас вы можете заказать паспорт фасадов.
Что такое паспорт фасадов
Паспорт фасадов – это документ, в котором зафиксирован текущий внешний вид здания, строения (на момент разработки паспорта фасадов) и представлен внешний вид, который отвечает установленным требованиям, вне зависимости от возможности/невозможности приведения внешнего вида здания, строения к указанному виду в настоящий момент (момент разработки и согласования паспорта фасадов).
Состав паспорта фасадов
  • Титульный лист
  • Ситуационный план
  • Пояснительная записка
  • Материалы фотофиксации существующего состояния фасадов
  • Фотографическое изображение развёртки фрагмента улицы с главного фасада
  • Колористическое решение фасадов
  • Ведомость применяемых материалов
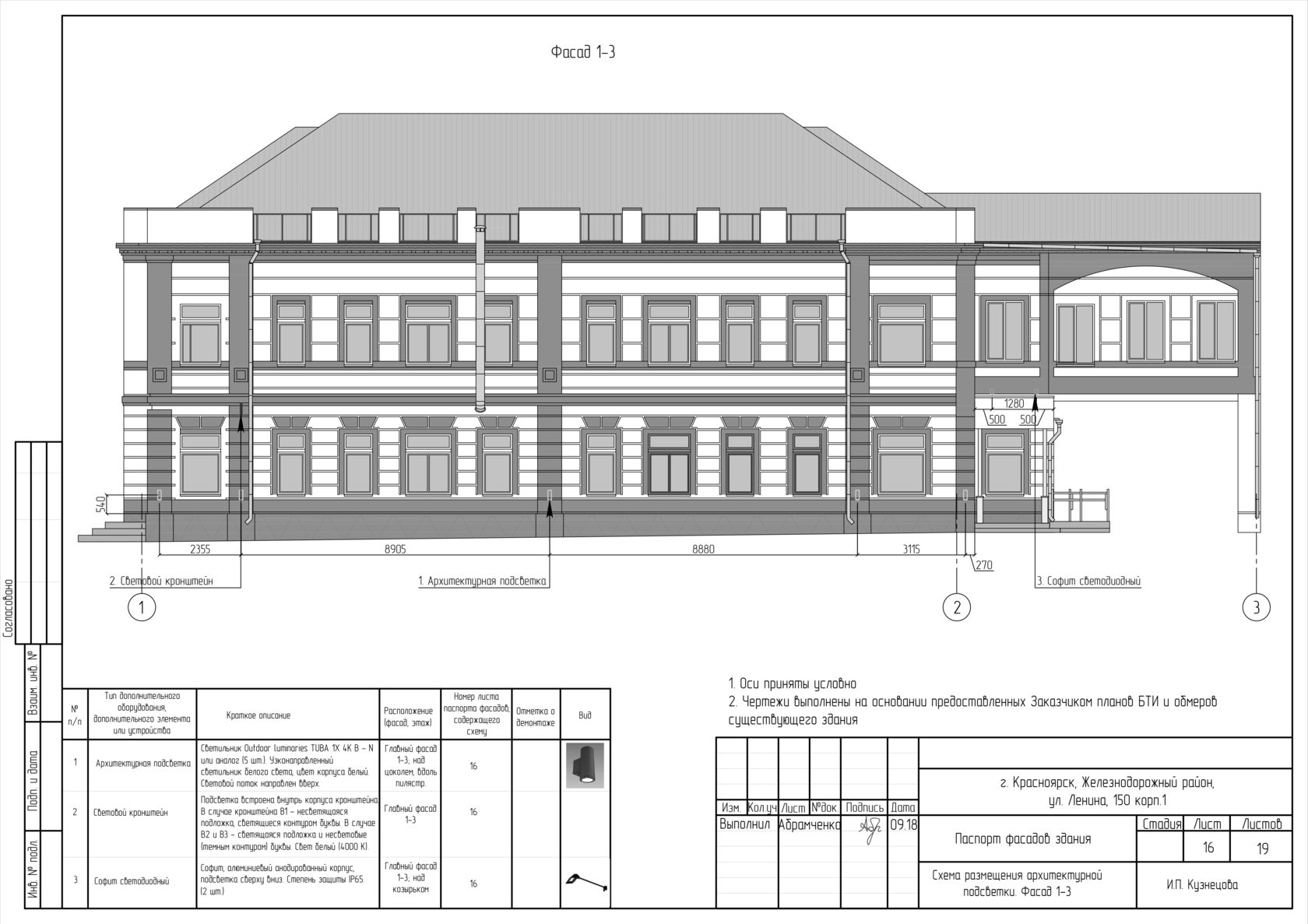
  • Схема размещения дополнительного оборудования, дополнительных элементов и устройств
  • Перечень оборудования, дополнительных элементов и устройств
  • Схема архитектурно-художественной подсветки
  • лист регистрации изменений
Согласно Постановлению 399 от 19.06.2018 у каждого строения, сооружения - должен присутствовать паспорт фасадов, в котором будут отражены изменения, которые следует провести собственникам здания.
Мы с удовольствием спроектируем гармоничный фасад, учтем пожелания собственника здания и его арендаторов. Выполним колористический паспорт фасадов с учетом всех правил.
Качественно
Гарантируем качество выполненной работы.
Быстро
Благодаря штату грамотных специалистов, укладываемся при выполнении работы в краткие сроки.
Гарантируем согласование
Сопровождение, согласование с администрацией всех дополнительных документов.
100 000

Штраф за отсутствие/не соответствие паспорту фасадов. Оплаченный штраф не освобождает от выполнения.
8 утверждены

На данный момент на согласовании - 3, а в процессе разработки находятся 4 паспорта
4 месяца

Срок исполнения постановления до 18 октября 2018г. Поспешите выполнить постановление!
Выполненные паспорта фасадов
Министерство социальной политики Красноярского края
г. Красноярск, пр-т. Мира, 34
Травмпункт №2 центрального и железнодорожного р-ов
г. Красноярск, ул. Ленина 150, корп. 1
Городская библиотека им. А. М. Горького
г. Красноярск, ул. Перенсона, 23