RED Business

бизнес-центр
БАЛАНС

Дизайн-проект общественных интерьеров
общая информация
Бизнес-центр класса "А"
БЦ Баланс - лучший бизнес-центр класса "А" по версии «Сommercial Real Estate Awards»-2017 в Красноярске.
дизайн-проект
БЦ Баланс
концепция
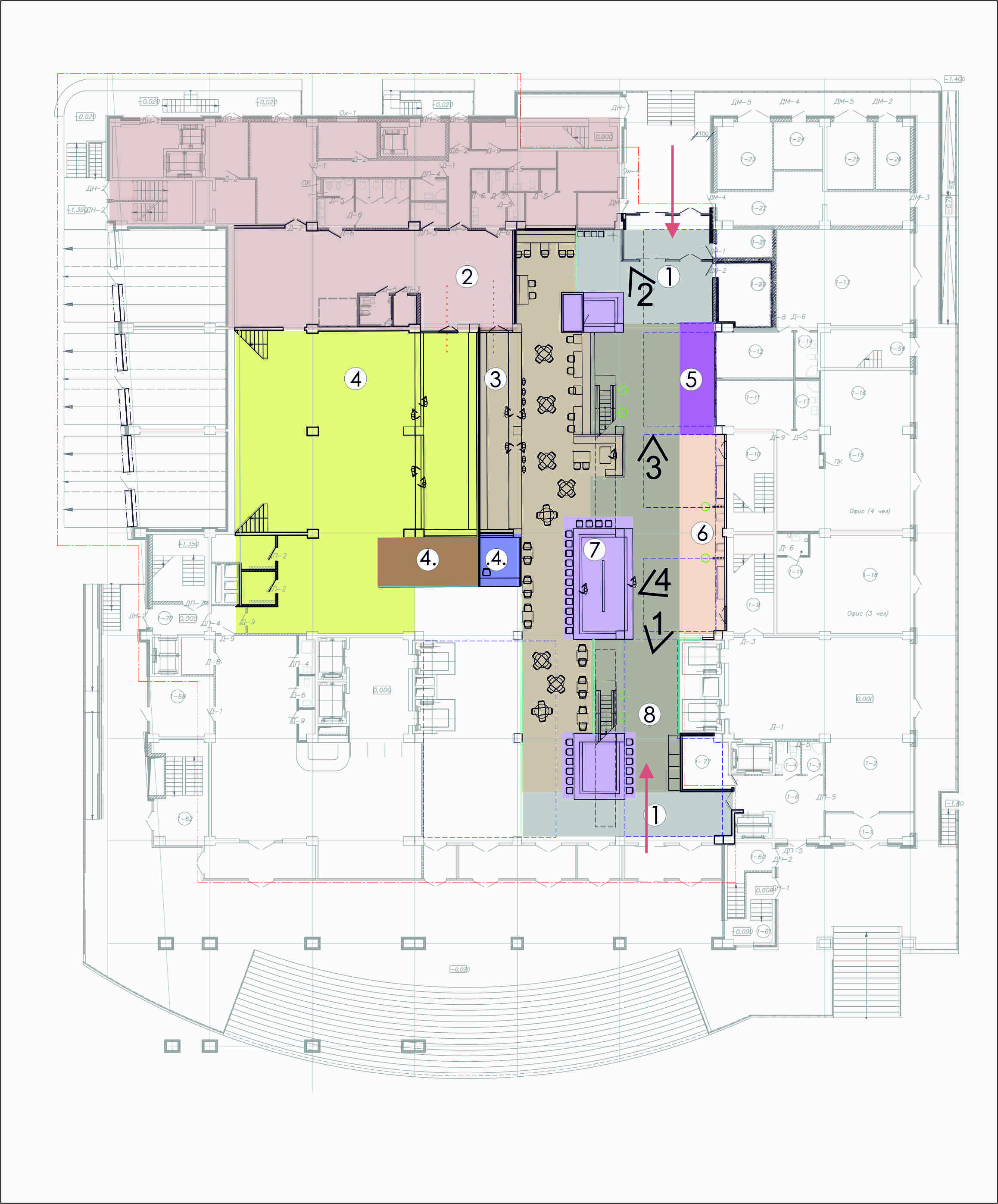
Атриум
"Баланс-street" атриум со специально организованными зонами отдыха, соединяющий две башни.
Концепция зеленой улицы основана на объединении двух башен. Одна башня олицетворяет статус и опыт, другая амбиции и энергию. Имиджевая улица связывает их вместе несет в себе статусный посыл при урбанистичном внешнем виде.
Этот эффект достигается при сочетании современных и классических материалов.
Проектируемая зона имеет два выхода, которые обеспечивают
транзитное движение посетителей.
Один вход, располагается со стороны
торгового института, другой со
стороны улицы Маерчака. По левой стороне расположен ресторан с зоной
самообслуживания.

Ресторан рассчитан на обслуживание
работников БЦ и студентов в дневное
время. В центре улицы осуществляется
транзитное движение посетителей,
направление, которого подчеркивается
раскладкой плит на полу.
С правой стороны создана зона спокойного отдыха.
1. Буферная зона. банкоматы.
2. Кухня и подсобные помещения
для обслуживания ресторана и кафе бизнес-ланчей с линией раздачи.
3. Кафе бизнес-ланчей.
4. Ресторан с хорошим баром (120ч, 250м2) с гардеробом и с/у.
5. Арт-объект, фото-зона.
6. Зона отдыха.
7. Кофейня/кондитерская.
8. Променад.
Схема функционального
зонирования